Casa indipendente in vendita

Sorgà - Bonferraro
€ 148.000
4 locali 4 locali
150 Mq 150 Mq
1 bagno 1 bagno

Casa indipendente in vendita

Sorgà - Bonferraro

Descrizione annuncio

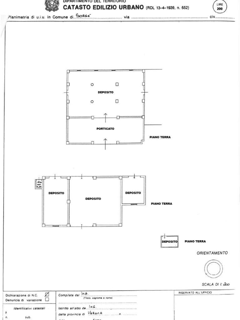
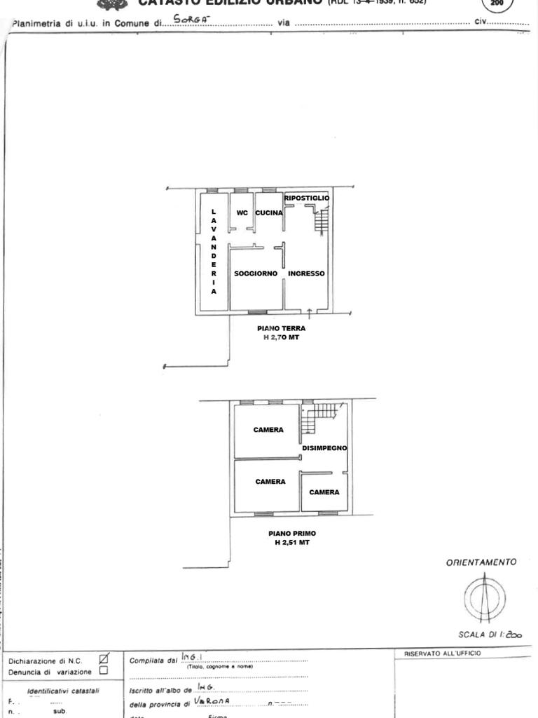
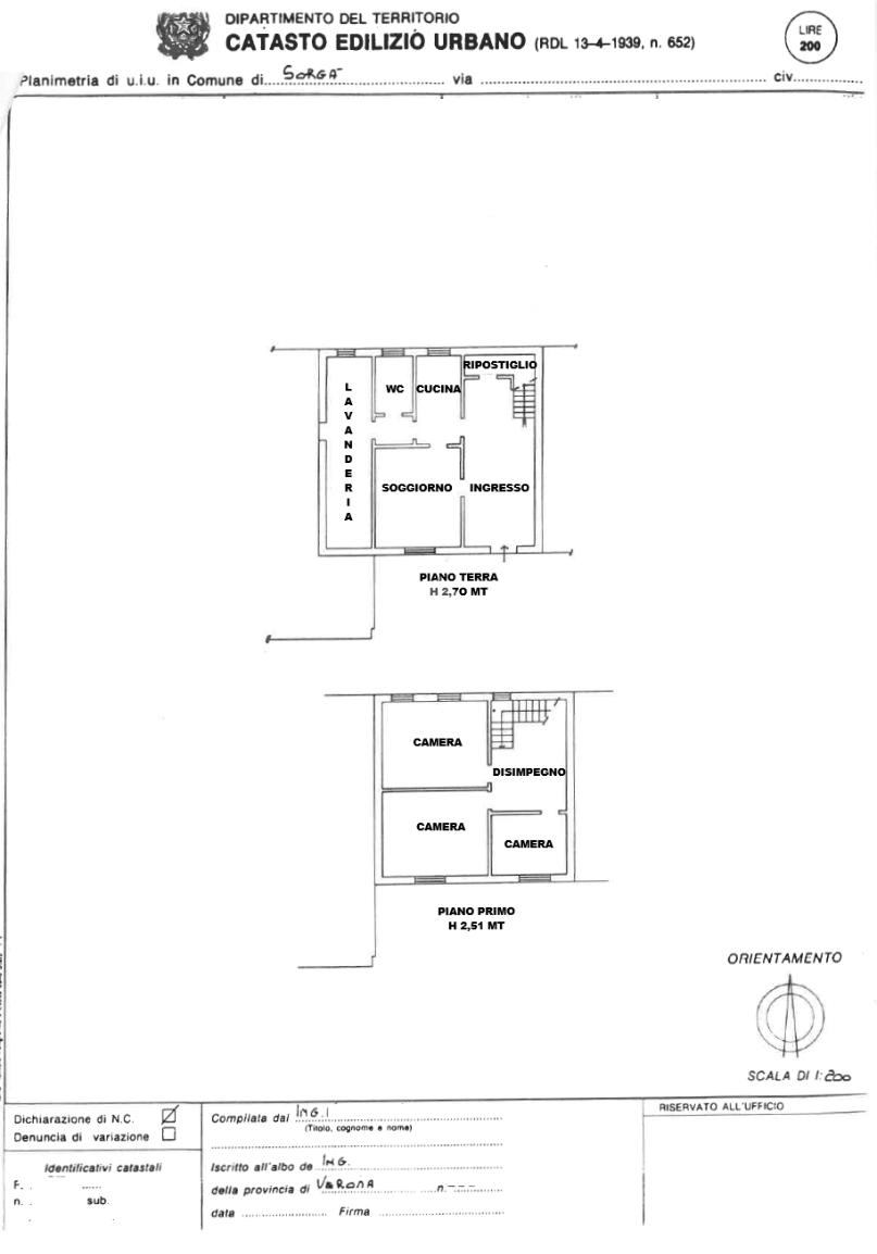
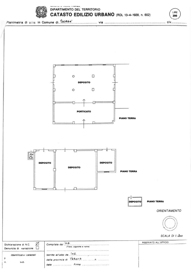
SORGA': Località Bonferraro - In zona tranquilla immersa nel verde, su un lotto di mq. 5.000 circa, casa indipendente di mq. 150 circa, disposta su due livelli fuori terra, oltre a deposito/fienile di mq. 300 circa in corpo staccato.
L’abitazione è composta da:
Piano terra: ingresso, soggiorno, cucina abitabile, bagno, lavanderia e ampio locale ad uso deposito.
Piano primo: tre ampi locali (camere o stanze versatili).
Completa la proprietà un deposito/fienile di mq. 300 circa, ideale per attività agricole, uso magazzino o rifugio per le auto.
La soluzione presenta finiture ed impiantistica originali dell'epoca di costruzione e necessita pertanto di una completa ristrutturazione.
Soluzione per famiglie numerose, per chi desidera vivere nella tranquillità della campagna e per gli amanti degli animali.

Mostra tutto

Nelle vicinanze

Trasporto pubblico Trasporto pubblico
Bonferraro
Bonferraro
1,2 Km
Scuole Scuole
Scuole
1,2 Km
Farmacia Farmacia
Farmacia Tarocco
1,2 Km
Ospedali Ospedali
Ospedali
2,4 Km
Ristoranti Ristoranti
Ristorante Natural Cuisine
1,2 Km
Mostra tutto

Caratteristiche

Rif.:
61194292
Totale piani:
2
Box:
3
Posti auto:
2
Camere da letto:
3
Arredamento:
Assente
Mostra tutto
Prezzo Prezzo
€ 148.000
Rata mutuo Rata mutuo
€ 701 / mese
Proponi il tuo prezzoProponi il tuo prezzo

Classe Energetica

G
G
G
G
G
G
G
G
G
EP globale non rinnovabile:
263.00 kW h/m² anno
EP globale rinnovabile:
0.93 kW h/m² anno
EP invernale del fabbricato:
EP estiva del fabbricato:
Anno di costruzione:
1967
Riscaldamento:
Autonomo
Tipo impianto:
A radiatori
Tipo alimentazione:
GPL

Ti interessa visionare l'immobile?

Fissa un appuntamento  Fissa un appuntamento

Richiedi informazioni

Clicca su Leggi per aprire l'informativa
* Questi campi sono obbligatori

Calcola il tuo mutuo

Semplice e senza impegno
Anticipo

( % )
Mutuo

( % )

pochi semplici passi

inserisci i tuoi dati
Questionario completato
Grazie per aver richiesto un appuntamento senza impegno con un nostro Consulente del Credito e Assicurativo.

Hai inserito correttamente tutti i dati necessari e a breve riceverai una e-mail con un link da convalidare per inviare i tuoi dati.
Affiliato
Mad Sas
Via Cavour, 46 37063 Isola Della Scala (VR)

Il nostro staff


  • Andrea De Rossi
    Affiliato

  • Giovanni Tomasetto
    Responsabile

  • Elisa Tomasetto
    Responsabile
Via Cavour, 46 37063 Isola Della Scala (VR)
Zona: Isola della Scala - Trevenzuolo - Erbè
Mostra su mappa
Orari: lunedì - venerdì dalle 9,00 - 12,30 e dalle15,00 - 19,45 - sabato mattina dalle 9,00 alle 12,30
Affiliato
Mad Sas
Via Cavour, 46 37063 Isola Della Scala (VR)

2026 Tecnocasa Franchising S.p.A. - P. IVA 08365160152 - Via Monte Bianco 60/A 20089 Rozzano (MI). Ogni agenzia ha un proprio titolare ed è autonoma. Privacy policy | Policy utilizzo | Cookie policy